Υπηρεσίες

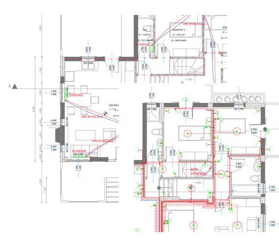
Ηλεκτρομηχανολογικές Μελέτες Κτιρίων

Μελέτη και επίβλεψη σε νέα και υφιστάμενα κτίρια

Αναλαμβάνουμε κάθε είδους ηλεκτρομηχανολογική μελέτη όλων των χρήσεων (κατοικιών, καταστημάτων, βιομηχανικών).

Ενεργειακής απόδοσης κτιρίου, Συστημάτων θέρμανσης και απωλειών, Κλιματισμού, Εξαερισμού, Ηλεκτρολογικών ισχυρών και ασθενών ρευμάτων, Ενεργητικής πυροπροστασίας και πυρόσβεσης, Ύδρευσης, Αποχέτευσης, Ανελκυστήρων ηλεκτρικών και υδραυλικών, Ηλιακών και γεωθερμικών συστημάτων

Όλες οι μελέτες ακολουθούν την ισχύουσα νομοθεσία και οι εφαρμογές αυτών γίνονται με γνώμονα την πλέον κατάλληλη οικονομοτεχνικά λύση.